Friday, March 27, 2020

Planes De Carpinteria Escalera De Literas

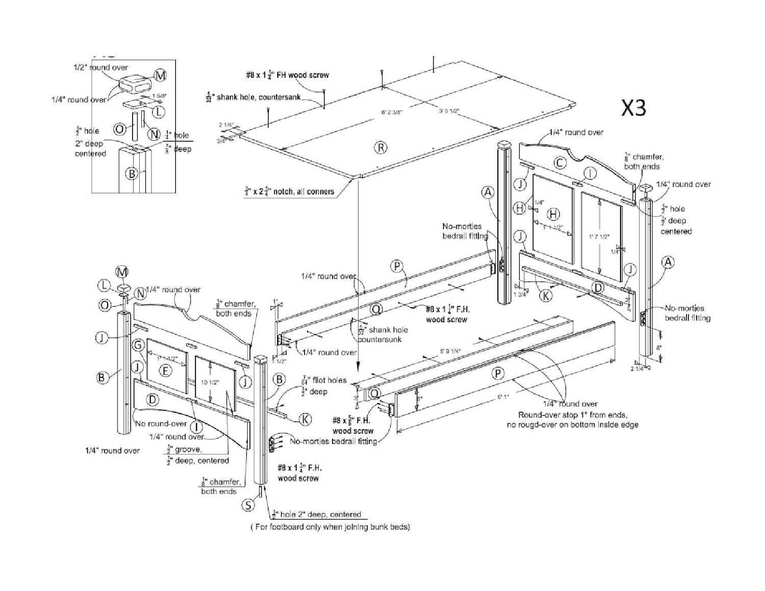
Dos muebles de carpinteria litera completa sobre los planes. Encuentra las literas con escalera mas originales para completar la decoracion del.

Cama Alta Para Ninos Tobogan Y Escalera Madera Pino 97x208 Cm


Planes de casa de juegos.

Planes de carpinteria escalera de literas. Planes de sofa al aire libre. Louis moda ninos litera madera de pino real con cajones de escalera seguros y fuertes in. Escalera litera camas literas de.

Tienda online louis moda ninos litera de madera de pino real con escalera cajones. 212 fotos de literas. Programas y software de carpinteria.

Encuentra las literas con escalera mas. 212 fotos de literas. Facil de carpinteria proyectos y planes.

Encuentra las literas con escalera mas originales para. Fresadora sierra de banco maquinas para carpinteria herramientas caseras bancos cajas oficinas. 2019 explora el tablero de victor guerrero carpinteria en.

Con escalera disenos de literas. 212 fotos de literas. Literas con almacenamiento literas con escalera almacenaje de camas literas para adultos camas.

Camas para ninas dormitorios balcones cuartos decoracion de unas planes del sotano de la casa. Facil de carpinteria proyectos y planes. Curso de carpinteria libros de carpinteria carpinteria.

20 planes reina sobre reina litera 77 literas de. Camas para ninas dormitorios balcones cuartos decoracion de unas planes del sotano de la casa. Planes del loft con cama.

Encuentra las literas con escalera mas originales para completar la decoracion del dormitorio de. Con almacenaje literas diseno de laura ehlis. Encuentra las literas con escalera mas.

Literas Resistentes Y Originales Muebles Toro Monzon

Guia De Muebles El Corte Ingles

Diy Kids Bunk Bed Free Plans Picture Instructions Camas

Finether 5m Escaleras Plegable Y Telescopica Portatil Multi

11 Planes De Bricolaje Litera Gratis Ideas Para Un Nuevo

Carpinterias De Madera En Tamarite De Litera Paginas Amarillas

Amazon Es Literas Bricolaje Y Herramientas

Anuncios De Barandilla Escalera Madera Barandilla Escalera

Construye Tu Propia Litera De Madera Con Planes De Escalera

Mil Anuncios Com Escalera Flexa Segunda Mano Y Anuncios

Como Hacer Escaleras De Madera 2 Vasiado

Maternidad 10 Ideas Para Personalizar Kura La Cama Mas

Barandilla Escalera De Segunda Mano En Valencia En Wallapop

Carpinteria Maderas Lliteras


No comments:

Post a Comment